KH70-5

KH70-5

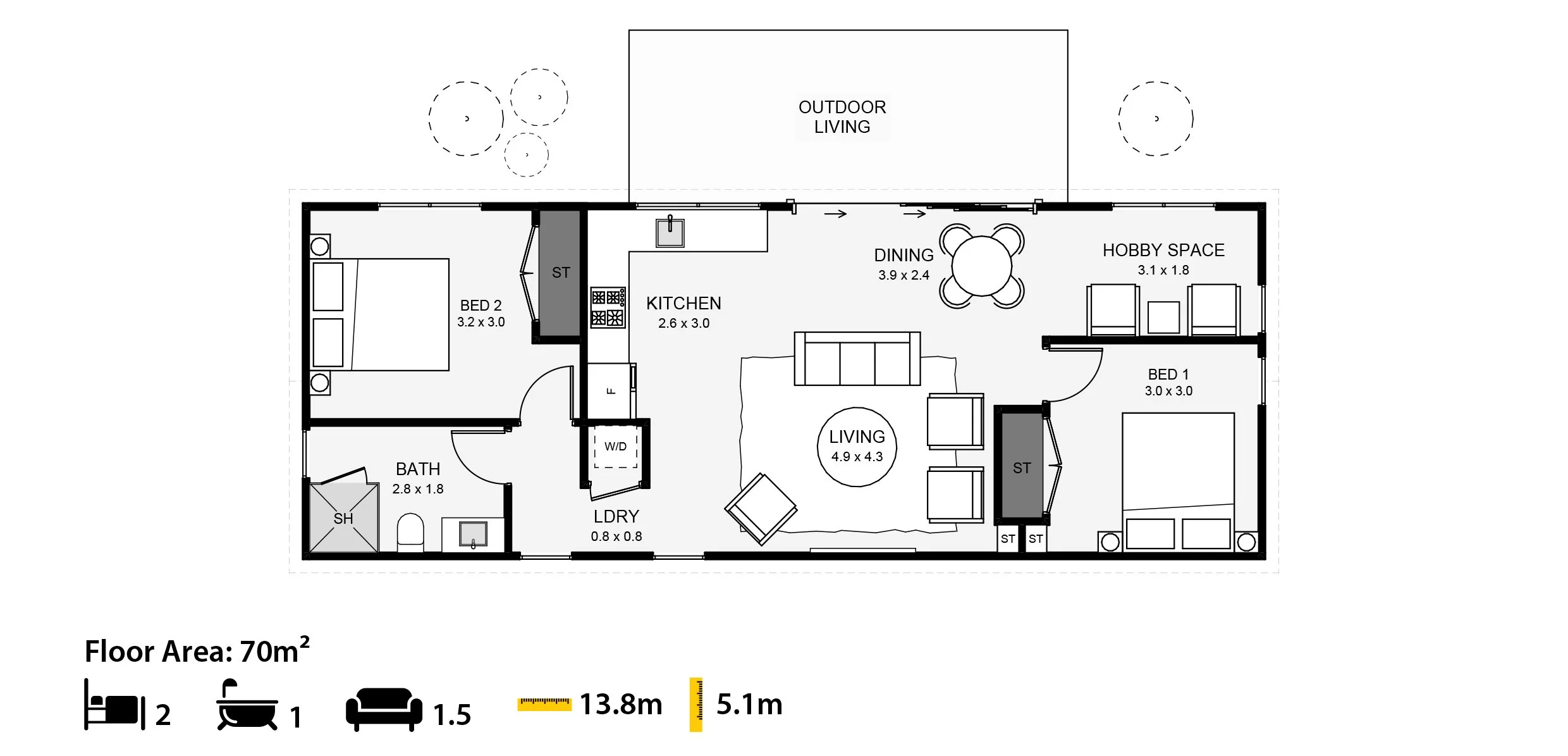
Here’s one with a twist—built-in hobby space for whatever you love to do. Think sewing, painting, or a home offce without cutting into bedroom space. You’ve got two bedrooms, a roomy kitchen and lounge, and even 1.5 bathrooms for a bit more comfort. Clean lines, loads of natural light, and flexibility baked right in. Also available in a monotpitch roof version.

Previous
Previous

KH70-4